1511 CLARCONA ROADAPOPKA, FL 32703


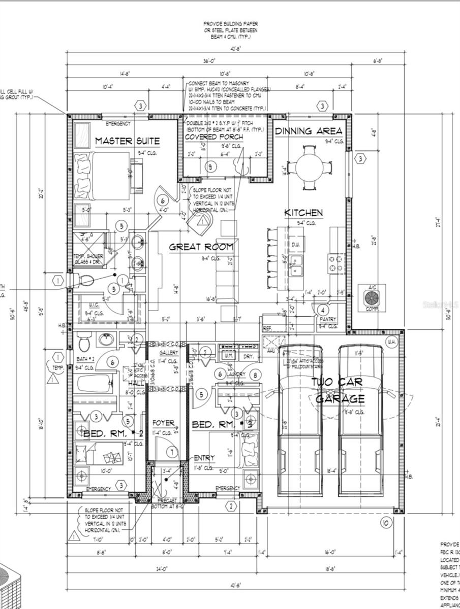
Don’t miss this incredible opportunity to build your brand-new home in the heart of Apopka! This prime homesite already has an approved building permit from Orange County for a single-family residence and best of all, there is NO HOA. The seller has done all the heavy lifting for you. Building permits and septic permit fees have already been paid. In addition, approximately $25,000 in Orange County impact fees have already been paid and will transfer to the new owner as a credit. Approved plans include a beautiful designed 3-bedroom, 2-bath home with a 2-car garage. The seller will transfer the approved building permit to the new owner, making this a seamless and ready-to-build opportunity. Please use as-is-contract. POF when submitting contract.
| 6 hours ago | Listing updated with changes from the MLS® | |
| 7 hours ago | Listing first seen on site |
Listing information is provided by Participants of the Stellar MLS. IDX information is provided exclusively for personal, non-commercial use, and may not be used for any purpose other than to identify prospective properties consumers may be interested in purchasing. Information is deemed reliable but not guaranteed. Properties displayed may be listed or sold by various participants in the MLS Copyright 2026, Stellar MLS.
Last checked: 2026-02-15 05:26 PM EST
Did you know? You can invite friends and family to your search. They can join your search, rate and discuss listings with you.